【新規リノベ済み物件 10月31日完成予定】枚方淀川公園 スカイハイツ 5階 1,880万円

相談無料

見積無料

0120-35-4747

【営業時間】9時~18時(隔週土曜日・日曜日・祝日定休)

メールでお問い合わせ

メニューを開く

スタッフブログ

2025/10/09

【新規リノベ済み物件 10月31日完成予定】枚方淀川公園 スカイハイツ 5階 1,880万円

お世話になっております。

過ごしやすい気温になってきた??

不動産事業部 木村です。

2025年10月31日完成予定

淀川公園スカイハイツ 5階 3LDK 1,880万円
自然豊かな環境でペットと過ごせるマンション!

※ペットの飼育には諸規定ございます。

■建築時期 昭和57年(1982年)年7月新築 僕より6個先輩の築43年

弊社施工のオシャレ内装!イメージパース

※イメージと現況が異なる場合は現況優先となります。予めご了承ください。

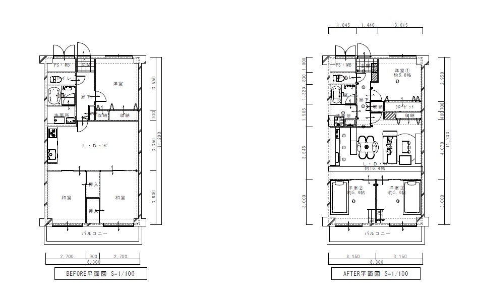
■Before→After  専有部分面積 70.50㎡(壁芯) バルコニー面積 7.56㎡

■管理費 3,220円 修繕積立金 15,560円 駐車場 6,900円/台 空き区画有!
※2025年10月3日時点の情報です。引渡時の空き区画は保証いたしかねます。

なんと!!70㎡超えのお部屋に 月々約8万円でお住まいいただけます!

※毎月のローン返済額は借入額 2,000万円 金利0.775%でお借入れできた場合の数字です。

※物件代金の他に諸費用が掛かる為、2,000万円の借入となっています。

■敷地内に洗車スペース有!

■京阪本線 「光善寺駅」まで徒歩約18分/約1.3km
※北側の出入口からの距離です。

■蹉跎西小学校 徒歩約10分/750m
■蹉跎(さだ)中学校 徒歩約14分/1km 

【木村が思うセールスポイント】

・ダイケンリフォームサービス施工の内装!!

・河川敷が隣にあるので、ワンちゃんのお散歩めちゃくちゃしやすい!

・マンションの前に郵便ポスト。

・セブンイレブン道路挟んですぐ!

・ヤマト運輸さんも徒歩圏内

副業なんかでフリマサイト活用されてる方には最高ですね。

・枚方ゴルフセンター(打ちっぱなし)も車で約6分!

【木村が思うセールスできないポイント】

・告知事項有。

・スーパーが遠い。※宅配等ご利用いただければある程度解消!

・エレベーターから部屋まで少々距離がある。

ぐらいかな・・・。

と、書いたもののあくまで僕の意見です。

人により捉え方がちがうので、まずはご内覧を!
 

ご予約は下記から可能です♪

◇不動産事業部・フリーダイヤル 0800-888-8858

♢SUUMO https://suumo.jp/ms/chuko/osaka/sc_hirakata/nc_78119571/

お待ちしております!!

まずはお気軽にお問い合わせください! まずはお気軽にお問い合わせください!

相談無料! 見積無料! リフォームのことなら何でもお任せ! 相談無料! 見積無料! リフォームのことなら何でもお任せ!

地域密着

0120-35-4747

【営業時間】9時~18時(隔週土曜日・日曜日・祝日定休)

0120-35-4747

電話を受ける女性スタッフ 写真